






多言不如沉默 发表于 2021-08-06 12:11
全部拿房了么?我咋没接到通知
| 欢迎加入装修日记大家庭,您已成功参与【2021嘉瑞装饰杯装修日记大赛】 活动时间:2021年6月1日~2021年8月31日 福利: 2021年6月1日~2021年8月31日开装修日记帖,楼主发图文并茂帖满30楼可获50元购物卡。 更多奖项评选规则可查看活动主题帖 【2021嘉瑞装饰杯装修日记大赛】相约装修网友一同装修,一同记录~ http://www.loveshang.com/thread-853232-1-1.html 邀请你加入“家装日记微信群”,这是家装日记参加者讨论装修的大本营。可扫下方二维码添加团长微信,并内信我们你的电话,以便其他装修福利活动的优先通知。(郑重声明:我们将严格保密你的个人信息!) 注意事项:若站内信收到小广告,以及骚扰的站内信,请勿相信,有疑问及时联系我们。 2021年,小编希望遇到更多的他她,期待与你们的缘分。写日记帖一定要来找团长哦,还没加我微信的赶紧加起来:18962255063
|
港城街溜子 发表于 2021-08-06 13:11
这个小龙,要好好感谢爱上网

默默相依11 发表于 2021-08-06 14:43
之前也听人介绍过。本来打算装修搁置了,这家价格还是挺公道的
默默相依11 发表于 2021-08-06 14:43
之前也听人介绍过。本来打算装修搁置了,这家价格还是挺公道的
默默相依11 发表于 2021-08-06 14:43
之前也听人介绍过。本来打算装修搁置了,这家价格还是挺公道的
记住我 发表于 2021-08-06 22:50
干活不太行,谁装谁知道
记住我 发表于 2021-08-06 22:50
干活不太行,谁装谁知道
















力哥 发表于 2021-09-15 14:12
你这户型还要设计吗,基本就是按部就班









鱼鱼爱喵喵 发表于 2021-09-16 12:20
就是有点卖家秀和买家秀的感觉

冰淇淋小姐 发表于 2021-09-16 14:54
喵喵姐好,看你买东西好爽快



鱼鱼爱喵喵 发表于 2021-09-16 15:01
就是有点傻白甜的感觉,一看喜欢就买,一回家就后悔,没仔细看看

,地板就看了圣象跟得高还有另外一家进口地板店德合家。小红书上看了圣象的爱尔兰风铃感觉不错,本来想订的,现场看了下颜色感觉不是想要的,山风的颜色更干净一点。偶尔一个周末的早上无意中走进了得高,店里的樊经理给我介绍了一上午,本来准备实木多层的,从来没考虑强化地板的我对他们Quick Step系列印象还可以,环保等级很高,质保25年,比利时原装进口,今天装明天就能住,45度锁扣,不需要打胶水,也很适合地暖。德合家有比利时Berry alloc,他们家价位很可以,都是2米多的大板,无奈花色不是我喜欢的就放弃了,质量跟价位都是蛮可以的呢,买东西有时候还真的靠缘分
,今天放假就约了设计师去得高挑好了,怕自己的眼光不好

,实诚的老板,我还是听了他的意见,最终就决定阳台上的大理石包边还有房间里的门槛石给他包掉







非言 发表于 2021-09-30 19:21
为啥设计师和装修公司不一家,还能分呢?
,之前看其他帖子上说承重墙开槽不能超过30cm,跟师傅说过了,说可以改





港城吴彦祖. 发表于 2021-10-09 19:24
真的很用心了

冰淇淋小姐 发表于 2021-10-10 16:19
厨房选的吊轨三联动移门,7mm极窄慕尼黑,五金欧派克,广东那边的料子,厨房比较小,三联动会显得开间大点,内卫门也一家搞定了,一层超白玻长虹玻璃+一层超白玻,移门就看了两家就定了,越往后越随意了
快乐小猫 发表于 2021-10-16 20:13
央誉精装敲掉自己重新装?




冰淇淋小姐 发表于 2021-10-25 14:38
观察了一下,每个工序结束,师傅都会把现场卫生打扫好,这点值得表扬,上次去木工定位,电工师傅还有点没收 ...
房产18751165430 发表于 2021-10-25 15:24
最近装修咋样了?最近也在和嘉瑞接洽中。。。。还没最终决定。。。。你那边装修下来,整体感觉怎么样?
冰淇淋小姐 发表于 2021-09-16 09:57
9/11来说说封窗吧,封窗是所有项目里面订的最早的,当时也没看几家就订了,订的是红星里面的卓图(店里面的约翰德尔系统窗,非卓图品牌,卓图的进口五金价格又要贵上好几千了),五金配件不是进口的,宝泰国标34隔热条,丝吉利娅隐藏式进口五金(隐藏式只能90度开启,如果用明合页的话可以180度开启),德国舒勒梅特不锈钢把手,玻璃配置为5+15A+5白中空双钢化,中间挡水条微波硫化整体焊接,型材表面处理为立邦粉末喷涂,这家店对于自己的产品介绍比较少,主要让你看他们店里面的产品,去的其他店销售对于什么三玻两腔,隔热条,断桥铝介绍的很多,也会给你看很多切面,我觉得除了看店里面的样品,再去他们实际做的工地看看效果怎么样再决定会比较好,现在封窗的品牌太多了,店里面样品看的好的,不见得现场有多好,现场也能看到他们的施工水平怎么样

冰淇淋小姐 发表于 2021-10-25 17:30
阳台上的窗框玻璃千万不要先装,可以晚点订,等木工结束后再装,装修家里的灰尘太多了,弄的全是灰尘,一开始不懂啊,忧伤
鱼鱼爱喵喵 发表于 2021-10-25 23:03
为啥?先吊顶万一下雨咋办?都是先装好窗木工再进场的

















司米全屋定制 发表于 2021-11-02 16:00
你好 有时间可以来司米全屋了解一下 地址:红星美凯龙2号馆2楼司米全屋 徐晓晓15895661617










冰淇淋小姐 发表于 2021-10-10 16:19
厨房选的吊轨三联动移门,7mm极窄慕尼黑,五金欧派克,广东那边的料子,厨房比较小,三联动会显得开间大点,内卫门也一家搞定了,一层超白玻长虹玻璃+一层超白玻,移门就看了两家就定了,越往后越随意了
非言 发表于 2021-11-09 16:32
哪家的,啥价格





冰淇淋小姐 发表于 2021-11-27 10:14
11/25,这一周没什么进展,钉子上涂水泥是干嘛的呢?
微微笑乐呵呵 发表于 2021-11-28 20:56
我猜应该是防止钉子生锈,或者防开裂?照理极致做法要每一颗自攻螺丝都涂上防锈漆的
微微笑乐呵呵 发表于 2021-11-28 20:56
我猜应该是防止钉子生锈,或者防开裂?照理极致做法要每一颗自攻螺丝都涂上防锈漆的
冰淇淋小姐 发表于 2021-11-29 10:18
我问了项目经理,他说现在都用水泥了,说防锈漆不环保


鱼鱼爱喵喵 发表于 2021-11-30 07:42
我家好像也是这样的,我以为防锈涂料,原来是水泥啊









,但愿油漆后不要再出来了

冰淇淋小姐 发表于 2021-12-01 15:46
餐厅顶上发现了一些裂痕,挂网看看能不能盖住,悲催的,但愿油漆后不要再出来了
鱼鱼爱喵喵 发表于 2021-12-01 17:24
为啥有裂痕了?

曝光港城黑中介 发表于 2021-12-02 21:20
楼主126是套内面积吗
曝光港城黑中介 发表于 2021-12-02 21:20
楼主126是套内面积吗
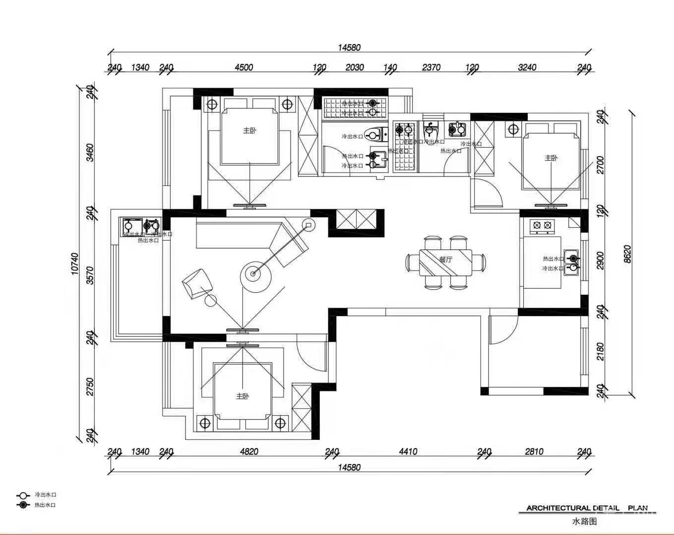
冰淇淋小姐 发表于 2021-12-03 09:45
不过这个户型面积利用率算比较高的,没有一条长长的走廊,其实我更喜欢带走廊的户型,带走廊的户型面积没这么大
好小的,我是御璟湾的曝光港城黑中介 发表于 2021-12-03 12:43
我就是带走廊的好小的,我是御璟湾的
冰淇淋小姐 发表于 2021-12-03 14:03
我看我们小区带走廊的114的面积还好,还双阳台呢,房间是的确小,公摊面积太大

曝光港城黑中介 发表于 2021-12-03 14:31
就是房间小啊,烦躁





| 欢迎光临 张家港爱上网 (https://www.loveshang.com/) | Powered by Discuz! X3.1 |