张家港爱上网

标题: 通苏嘉甬高铁线张家港市高铁站东站房及广场大型地下停车场正式开工! [打印本页]

作者: 在路上    时间: 前天 15:27
标题: 通苏嘉甬高铁线张家港市高铁站东站房及广场大型地下停车场正式开工!










作者: dayuer    时间: 前天 20:30
在北边?
作者: king282800    时间: 前天 23:32
dayuer 发表于 2025-12-06 20:30
在北边?

东站房,当然在东边喽
作者: king282800    时间: 前天 23:34
地下二层预留地铁通道,说明地铁还有戏
作者: 在路上    时间: 昨天 08:25
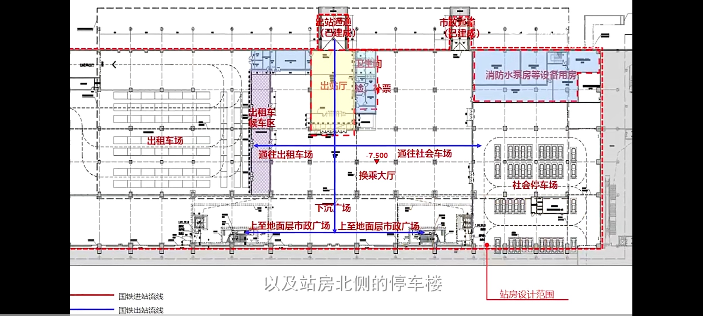
高架道路进侯车大厅
作者: 在路上    时间: 昨天 08:26










作者: 在路上    时间: 昨天 08:29
高大上,现代化国际化,一流设计规划
作者: wakee    时间: 昨天 09:05
张家港的铁路站,最大的遗憾是没有设立一个张家港西站或是保税区站。常熟与太仓都有2个铁路站
作者: 锦丰一绝    时间: 昨天 09:52
是不是整体规划比原来的小多了?原来要十多万平方了么,现在缩水了?
作者: 在路上    时间: 昨天 16:54
锦丰一绝 发表于 2025-12-07 09:52
是不是整体规划比原来的小多了?原来要十多万平方了么,现在缩水了?

百万平方米是商业综合体街区,商务贸易大楼规划图
作者: 扉冷翠    时间: 昨天 17:35
期待新站房!按照张家港的旅客量和车流量,这个三车道和五车道可能窄了点!另:希望弘吴大道周边东、北、南方向的路都能做通。
作者: 在路上    时间: 昨天 18:45







作者: 阿波罗2021    时间: 半小时前
king282800 发表于 2025-12-06 23:34
地下二层预留地铁通道,说明地铁还有戏

得10几年以后了,不确定性太多了。
作者: king282800    时间: 半小时前
wakee 发表于 2025-12-07 09:05
张家港的铁路站,最大的遗憾是没有设立一个张家港西站或是保税区站。常熟与太仓都有2个铁路站

这点路一条线不可能两个火车站的,常熟太仓两个站可不在一条线上




欢迎光临 张家港爱上网 (https://www.loveshang.com/) Powered by Discuz! X3.1