




视觉映象·设计 发表于 2023-10-19 08:57
恭喜楼主开工大吉












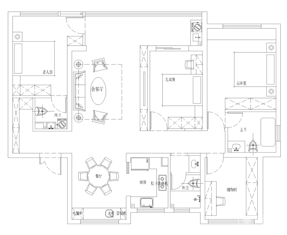
努力的买买提 发表于 2023-12-15 16:00
砸墙地方不多,一天就做完了。
水电定位费了很多心思,几方没有协调好,返工几次才搞定,真的是一言难尽


















杯水车薪啊!希望下周天气给力,能把窗户玻璃安上。









努力的买买提 发表于 2023-12-18 15:14
门窗老板给力,下雪天紧急安装了窗户

努力的买买提 发表于 2023-12-15 16:00
砸墙地方不多,一天就做完了。
水电定位费了很多心思,几方没有协调好,返工几次才搞定,真的是一言难尽
| 欢迎光临 张家港爱上网 (http://www.loveshang.com/) | Powered by Discuz! X3.1 |