Tracy001 发表于 2023-05-04 21:45
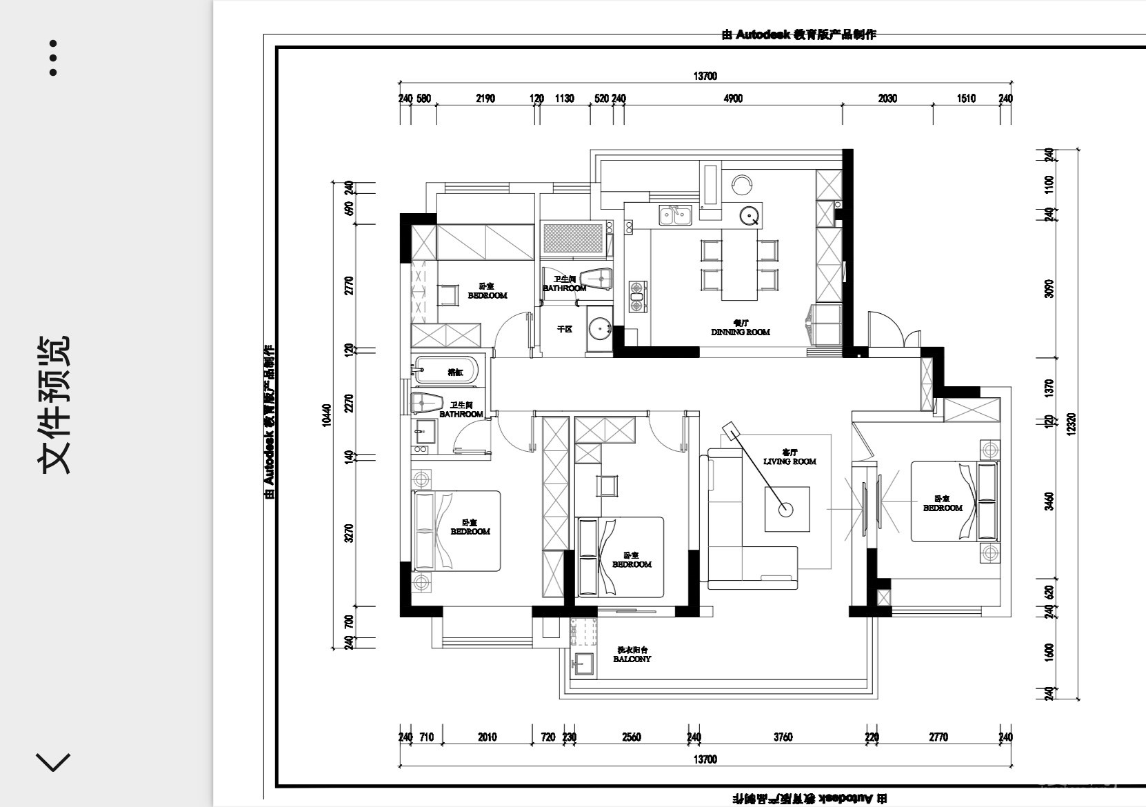
先说下购房经历吧,原来合兴的房子卖了快两年了,终于卖掉了,3月9号买家和我签了购房合同,3月19号我就和卖家签了星奕湾这套房子的购房合同,因为家里两个娃要读书,而且考虑到自住舒服点,所以当时就限定了几个条件:学区稍微好点、准新房、总价、四房。然后就是看房,现在信息发达,手机里中介一大堆,看来看去还是星奕湾的140的平层比较适合我,然后在售房源也就这么几套,比较了价格,摸了摸钱包,还是这套比较合适我,就看了这一套,上午看房,下午就签了合同。
小宝贝2010 发表于 2023-05-04 22:15
多少钱一平方,几楼

allenyin 发表于 2023-05-04 22:31
多少平方总价多少



 。富士通将军这个牌子可能比较小众,我还特地去知乎上研究了下,看了知乎大V“做暖通的是贫困户”的所有常见家用中央空调的测评,富士通将军的用料和性能还是挺强悍的。
。富士通将军这个牌子可能比较小众,我还特地去知乎上研究了下,看了知乎大V“做暖通的是贫困户”的所有常见家用中央空调的测评,富士通将军的用料和性能还是挺强悍的。
心有所栖 发表于 2023-05-04 22:47
多少钱美女?
 我性别没设置错啊,我私信你
我性别没设置错啊,我私信你雨纷纷 发表于 2023-05-04 23:03
总价多少?几楼?
 ,正度系统窗108,壁厚2.0的,具体价格未知,亲戚说就收个材料费和人工费,这个等做完了我再回来汇报。不过封窗面积比较大,32.8个平方,估计得超3万了
,正度系统窗108,壁厚2.0的,具体价格未知,亲戚说就收个材料费和人工费,这个等做完了我再回来汇报。不过封窗面积比较大,32.8个平方,估计得超3万了



史亚东 发表于 2023-05-05 00:24
设计很哇塞

Tracy001 发表于 2023-05-04 23:27
移门本来想叫别人来回收的,有人打电话我说2000收。封窗的亲戚和我说自己拆了去卖能多卖点钱,他来帮我拆。遂开工那天下午我和他一起去拆的,因为涉及到装修公司人员施工安全,栏杆还没拆,只拆了移门,然后30号去拉走了卖的,铝合金卖了1950多,玻璃卖了140多,加起来2100,还有栏杆到时还能卖个1000,加起来多收入了1000多,虽说累了点,但也多了比收入,还是开心的。到时给个500块工钱他吧,又是帮我拆又是开车帮我拉走的,虽说是亲戚、他也可能不要,但也不能觉得这是理所当然的事。
小宝贝2010 发表于 2023-05-05 07:40
下次找一下,也给工钱


港城好青年 发表于 2023-05-05 08:15
户型真不错,总楼层多少



asdqwe曲惟恩 发表于 2023-05-05 08:26
不错不错,把餐厅和厨房打通之后要做移门吗


Tracy001 发表于 2023-05-05 08:29
要做的,不做移门油烟味要跑出去的,而且通不了燃气啊


 预算有限,还是挑经济实惠的看看,有家我同事和亲戚都在他家买的,说是广东产的,看着挺好的,价格也挺便宜,考虑中
预算有限,还是挑经济实惠的看看,有家我同事和亲戚都在他家买的,说是广东产的,看着挺好的,价格也挺便宜,考虑中
Tracy001 发表于 2023-5-5 08:02
五一节前完成了敲墙和垃圾清运,交了垃圾清运费,物业费也正好到期了,一起续了。
zym 发表于 2023-05-05 15:44
你这个顶面没铲,墙面也铲得不干净
rita1129 发表于 2023-05-05 16:13
你这个硬装预算多少啊lz?
Tracy001 发表于 2023-05-04 22:51
我性别没设置错啊,我私信你
 不好意思
不好意思Tracy001 发表于 2023-05-04 23:14
封窗也比装修公司定的早,因为封窗也是亲戚做的,正度系统窗108,壁厚2.0的,具体价格未知,亲戚说就收个材料费和人工费,这个等做完了我再回来汇报。不过封窗面积比较大,32.8个平方,估计得超3万了
ttt688 发表于 2023-05-05 20:17
枫窗三万多不便宜啊
扬公子麻麻 发表于 2023-05-05 21:05
星弈湾的优势是前后落地阳台采光非常好。朝南四开间,卧室朝南,鸡肋是主卧偏小,其他卧室只能放1.5米的床,马桶与灶台一墙之隔共用一堵墙.可以适当的修改马桶的位置.
 马桶和灶那个我没注意过也,我刚研究了下,还不好还,除非把走廊进外卫的那个门洞往东挪,马桶换到对面方向,但现实是那个门洞动不了,东面那块是承重墙。所以还是算了,就这样吧,反正隔着墙呢,窜不了味
马桶和灶那个我没注意过也,我刚研究了下,还不好还,除非把走廊进外卫的那个门洞往东挪,马桶换到对面方向,但现实是那个门洞动不了,东面那块是承重墙。所以还是算了,就这样吧,反正隔着墙呢,窜不了味
Tracy001 发表于 2023-05-05 08:26
前天上完了材料,黄沙水泥砖头,昨天开始砌墙,一大早顾老板亲自过来给砌墙师傅定位
huang_20064 发表于 2023-05-05 23:27
是中间楼层吗?多少钱入的
小宝贝2010 发表于 2023-05-04 22:15
多少钱一平方,几楼
我有翅膀 发表于 2023-05-06 09:14
地砖选哑光的,我网上看见和你风格差不多的蹭蹭亮翻车了像住酒店 地砖铺好了难改了

Tracy001 发表于 2023-05-04 23:27
移门本来想叫别人来回收的,有人打电话我说2000收。封窗的亲戚和我说自己拆了去卖能多卖点钱,他来帮我拆。遂开工那天下午我和他一起去拆的,因为涉及到装修公司人员施工安全,栏杆还没拆,只拆了移门,然后30号去拉走了卖的,铝合金卖了1950多,玻璃卖了140多,加起来2100,还有栏杆到时还能卖个1000,加起来多收入了1000多,虽说累了点,但也多了比收入,还是开心的。到时给个500块工钱他吧,又是帮我拆又是开车帮我拉走的,虽说是亲戚、他也可能不要,但也不能觉得这是理所当然的事。
秋水1 发表于 2023-05-06 14:01
卖到哪里?有联系方式么?
相爱的物语 发表于 2023-05-06 02:06
我家星奕湾要卖,有意者私信
小宝贝2010 发表于 2023-05-04 22:15
多少钱一平方,几楼
niaoquehuqing 发表于 2023-05-08 09:00
有嘉瑞的联系电话吗,我想咨询下。

 忘了拍照了,下次再去看时补上
忘了拍照了,下次再去看时补上Tracy001 发表于 2023-5-9 16:17
今天和顾老板一起去看了灯,对比了下,西顿的射灯看起来是好,首先拿在手里分量都不一样,而且顾老板的渠道 ...

网友-16889 发表于 2023-05-10 11:03
楼主空了回下我的私信啊,装修的事情咨询下你





















Tracy001 发表于 2023-05-05 20:22
面积比较大,要这点钱了吧
牛天下 发表于 2023-05-24 15:04
我们封窗30多个平方左右,包含一个阳光房也是差不多三万多

Tracy001 发表于 2023-5-5 16:25
30以内吧,能省则省
Tracy001 发表于 2023-5-12 22:10
因为粉墙不好粉,昨天自己提前把两段栏杆先拆了,到底不是专业的,还搞了好一会儿
Tracy001 发表于 2023-5-12 22:30
发现个新问题,因为内卫原来的浴缸改淋浴房了,这个窗户就碍事了,得把这个窗户换掉,换成外开上悬的,又多 ...
羊晕晕 发表于 2023-06-01 14:13
30装不好吧

Tracy001 发表于 2023-05-04 22:50
刚想起来,其实我空调定的比装修公司还早,因为我小姑父卖空调的。他专做富士通将军这个牌子的,所以给我搭配了富士通将军1拖5加一个美的风管机,知道我穷,说这样实惠。富士通将军这个牌子可能比较小众,我还特地去知乎上研究了下,看了知乎大V“做暖通的是贫困户”的所有常见家用中央空调的测评,富士通将军的用料和性能还是挺强悍的。

Tracy001 发表于 2023-05-04 23:14
封窗也比装修公司定的早,因为封窗也是亲戚做的,正度系统窗108,壁厚2.0的,具体价格未知,亲戚说就收个材料费和人工费,这个等做完了我再回来汇报。不过封窗面积比较大,32.8个平方,估计得超3万了
炀炀 发表于 2023-10-15 15:30
多少平方,总价多少
Tracy001 发表于 2023-05-04 23:27
移门本来想叫别人来回收的,有人打电话我说2000收。封窗的亲戚和我说自己拆了去卖能多卖点钱,他来帮我拆。遂开工那天下午我和他一起去拆的,因为涉及到装修公司人员施工安全,栏杆还没拆,只拆了移门,然后30号去拉走了卖的,铝合金卖了1950多,玻璃卖了140多,加起来2100,还有栏杆到时还能卖个1000,加起来多收入了1000多,虽说累了点,但也多了比收入,还是开心的。到时给个500块工钱他吧,又是帮我拆又是开车帮我拉走的,虽说是亲戚、他也可能不要,但也不能觉得这是理所当然的事。
 
| 欢迎光临 张家港爱上网 (http://www.loveshang.com/) | Powered by Discuz! X3.1 |