听风就是雨 发表于 2023-04-25 20:54
看了全款交清,我就知道你要入坑




听风就是雨 发表于 2023-04-25 20:54
看了全款交清,我就知道你要入坑
moon89 发表于 2023-04-25 21:23
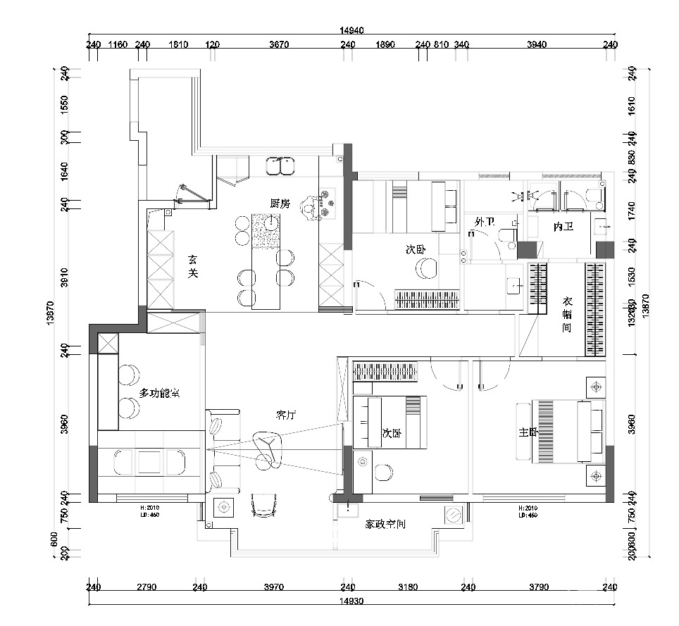
二胎家庭,平时常用三个房间,还有一台钢琴,原本打算四房改三房,考虑到父母一时半会过来住住,孩子大了睡一个房间多少有些不方便,还是得多一个备用房间。
开始首选墨菲床,问了几个全屋定制,都不建议做这种床,成功劝退。
后来就有了现在这个多功能房,平时可以当书房,琴房,榻榻米上做个升降台,不用来睡觉时孩希望房间子们可以在上面看看书下下棋,想想就很惬意。希望客厅显大一些,所以就做了个半开放布局,加了一道隐形拉门,平时不住人是拉开更宽敞,睡觉时就拉上。
平面布局修改如下

洛羽 发表于 2024-05-06 13:36
我们也是这个户型,打算装修,邻居可以指点指点不
| 欢迎光临 张家港爱上网 (http://www.loveshang.com/) | Powered by Discuz! X3.1 |