张家港爱上网
标题: NO.85【中梁】装修使我熬夜 [打印本页]
作者: 略略略略略 时间: 2022-1-1 00:34
标题: NO.85【中梁】【2022年罗米特·管道杯装修日记大赛 】装修使我熬夜
【小 区】:中梁
【房 型】: 平层
【开工日期】:2022年1月
【完工日期】:
【面积】: 135
【装修风格】: 现代
【装修公司】:网红嘉瑞
【项目经理】:顾嘉良
【设计师】:顾嘉良
-
微信图片_20220101003116.jpg
(55.62 KB, 下载次数: 3222)
-
微信图片_20220101003104.jpg
(39.39 KB, 下载次数: 3125)
作者: 略略略略略 时间: 2022-1-1 00:49
2021-2022跨年夜不睡觉码装修帖,欢迎大家围观指教啊!祝大家元旦快乐!
空调地暖:大金+阿里斯顿
封窗:宇华系统门窗
其余待定......
作者: 略略略略略 时间: 2022-1-1 00:54
话说拿房已经两年多了,虽然我和队友都不想承担起装修的重任,但还是被催促的走上了装修这条坎坷道路。我俩2021年9月开始有装修想法,所做的努力就是潜水在爱上网刷帖,看到好看的设计图记一下装修公司,看到网友吐槽的店就记到黑名单。最后在热心同事的推荐下加了第一个装修公司极致空间,我对极致空间很满意,服务态度好(沟通很顺畅),业务能力也好(通过刷抖音和爱上网看到的落地效果),但是价格让我退却(对我来说,各位预算够的请随意)。第二家易禾装饰,他们家主打全包,半包也做,但是销售太热情让我退却(本人社恐)。第三家馨宜家装饰,价格亲民,老板也做好多年了,质量不用担心,但是装修风格少了一点我们要的感觉(通过微信图片)。之后刷到微微笑乐呵呵的帖子,觉得效果图很不错,通过爱上网嘉瑞装饰加到了嘉瑞小美的微信,聊了一下基本情况,相约隔天面聊,去之前我已经在爱上网看了很多装修帖,对顾老板是有滤镜的,亲力亲为,实在,设计图搞得起飞......必须得去了解一下啊!接待我的就是顾老板,一开始我还以为是公司里的销售,后来才反应过来,他拿出早已准备好的平面设计图跟我讲解他设计的方案,之前我自己想的方案很混乱,又想要独立书房,又想要衣帽间,还想要客卧 —_—|||,最后他给出来的方案让我感觉确实比我自己想的更合理利用空间一点(之前几个夜白熬了,哈哈哈)。好了,接下来实际考察工地,和小美约好了时间,参观了3-4个正在施工的工地,立刻决定顺道去量个房。
作者: 家有豪杰 时间: 2022-1-1 07:48
略略略略略 发表于 2022-01-01 00:54
话说拿房已经两年多了,虽然我和队友都不想承担起装修的重任,但还是被催促的走上了装修这条坎坷道路。我俩2021年9月开始有装修想法,所做的努力就是潜水在爱上网刷帖,看到好看的设计图记一下装修公司,看到网友吐槽的店就记到黑名单。最后在热心同事的推荐下加了第一个装修公司极致空间,我对极致空间很满意,服务态度好(沟通很顺畅),业务能力也好(通过刷抖音和爱上网看到的落地效果),但是价格让我退却(对我来说,各位预算够的请随意)。第二家易禾装饰,他们家主打全包,半包也做,但是销售太热情让我退却(本人社恐)。第三家馨宜家装饰,价格亲民,老板也做好多年了,质量不用担心,但是装修风格少了一点我们要的感觉(通过微信图片)。之后刷到微微笑乐呵呵的帖子,觉得效果图很不错,通过爱上网嘉瑞装饰加到了嘉瑞小美的微信,聊了一下基本情况,相约隔天面聊,去之前我已经在爱上网看了很多装修帖,对顾老板是有滤镜的,亲力亲为,实在,设计图搞得起飞......必须得去了解一下啊!接待我的就是顾老板,一开始我还以为是公司里的销售,后来才反应过来,他拿出早已准备好的平面设计图跟我讲解他设计的方案,之前我自己想的方案很混乱,又想要独立书房,又想要衣帽间,还想要客卧 —_—|||,最后他给出来的方案让我感觉确实比我自己想的更合理利用空间一点(之前几个夜白熬了,哈哈哈)。好了,接下来实际考察工地,和小美约好了时间,参观了3-4个正在施工的工地,立刻决定顺道去量个房。
又想要独立书房,又想要衣帽间,还想要客卧 一是不是最后做了隐形床十衣柜十写字桌?抖音上书房装修怎么利用空间方案效果图很多的
作者: 冻柠茶 时间: 2022-1-1 08:11
元旦快乐
作者: 39。余温 时间: 2022-1-1 09:40
同小区,也准备装修中,能否方面加个微信。
作者: 39。余温 时间: 2022-1-1 09:41
同小区,也准备装修中,能否方便加个微信。
作者: 略略略略略 时间: 2022-1-1 14:47
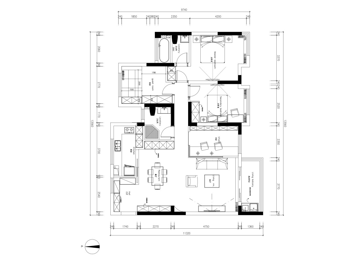
因为客厅比较大,参观了很多同户型都是做开放式的书房。但是考虑到我们书房使用频率高,还是需要安静独立,所以刚开始我的想法是做在客卧,客厅隔出来做衣帽间。因为客卧面积比较大,也方便小朋友活动,衣帽间做两排柜子,对面积也没有大的要求。但是,顾老板建议朝南的客厅隔出来做书房,设计玻璃隔断,可独立,又可有点互动性。朝北的客卧做折叠隐形床和衣柜,但是我对折叠隐形床不是很喜欢,总感觉容易坏,最后设计成1.5米的榻榻米,可收纳也可当客卧。附上平面设计图,欢迎大家指教啊~

作者: 鱼鱼爱喵喵 时间: 2022-1-1 16:50
略略略略略 发表于 2022-01-01 14:47
因为客厅比较大,参观了很多同户型都是做开放式的书房。但是考虑到我们书房使用频率高,还是需要安静独立,所以刚开始我的想法是做在客卧,客厅隔出来做衣帽间。因为客卧面积比较大,也方便小朋友活动,衣帽间做两排柜子,对面积也没有大的要求。但是,顾老板建议朝南的客厅隔出来做书房,设计玻璃隔断,可独立,又可有点互动性。朝北的客卧做折叠隐形床和衣柜,但是我对折叠隐形床不是很喜欢,总感觉容易坏,最后设计成1.5米的榻榻米,可收纳也可当客卧。附上平面设计图,欢迎大家指教啊~
有没有发现,很多装修公司要你(或建议你)做大横厅,餐厅书房做在客厅,这样他们能出效果!但是,对业主来说实用性真的不大,要考虑几个人住?家里几个小孩,这才是实用。书房就是要安静的



作者: 罗米特管道 时间: 2022-1-1 23:52
提示: 作者被禁止或删除 内容自动屏蔽
作者: 巴洛克地板客服 时间: 2022-1-4 09:12
提示: 作者被禁止或删除 内容自动屏蔽
作者: 蒙娜丽莎瓷砖 时间: 2022-1-4 09:37
提示: 作者被禁止或删除 内容自动屏蔽
作者: 略略略略略 时间: 2022-1-7 10:13
年前大概只能拆个墙,进度快的话砌完墙吧,我整理了一下拆墙的注意事项,望补充
注意事项:
1.总水阀关掉,避免无意间被破坏管道漏水到楼下
2.定位拆除墙体,开门洞处一定要划线定位,并且反正面画线
3.进行切割,一定要反正面双向切割避免拆墙震动对原有结构造成的空鼓开裂等问题
4.拆除大面积轻质砖一定是先大面再局部的顺序
5.针对墙体保留处一定要用电镐修直,再松动与裂缝处必须要一并拆掉
6.墙角与墙体连接处一定要用电锤打断,然后再用大锤拆除
7.拆除保温墙前一定要先把墙面用切割机分块
8.拆保温墙用电镐把保温材料连同粘结砂浆一并铲除干净,一定要避免因为粘结砂浆未清除干净而产生额外的施工费用
9.装袋清运,拆墙前对地漏排污口一定要保护起来避免砖渣掉入堵塞管道
操作步骤:
一、明确拆除墙体的位置和尺寸
二、明确尺寸后进行上中下三点定位
三、依上中下三点进行三点一线的弹线
四、用切割机依线对墙体进行切割
五、用电镐进行点状钻孔切割打孔
六、抡锤(此做法优势:精准定位,避免拆除时的震动给旁边墙体造成损伤)
七、在新砌墙体需要交接的老墙体上,每隔30-40公分拆出齿口以便砌墙时让新旧墙体充分咬合
全房施工规范和标准
检查:
1. 水管有没有拆坏
2. 承重墙务必不能拆
3. 材料验收,水泥和砖到场,业主要验收,要选整块的,水泥牌子:海螺、润丰、南方、华新等
4. 注意砌墙拐角砖的连接
5. 再轻质砖墙上挂网这样可以有效地防止墙面开裂
6. 门洞要做过门梁防止开门不顺或变形,底部砌好后要过一两天再砌顶部防止变形开裂
7. 验收有不合理及时记错不要想着凑合,砌墙完中央空调进场(砌墙还没研究)
最后 每次去工地能多拍照就多拍照,说不定之后能派上用场!!!
-
图片1.png
(101.03 KB, 下载次数: 1475)
-
图片2.png
(383.21 KB, 下载次数: 1500)
-
图片3.png
(459.14 KB, 下载次数: 1545)
-
图片4.png
(318.43 KB, 下载次数: 1511)
-
图片5.png
(514.85 KB, 下载次数: 1455)
作者: 略略略略略 时间: 2022-1-7 11:23
可以的,私信一下微信号
作者: skykky 时间: 2022-1-21 21:41
你好,也准备装修,能私下半包价格吗
作者: DFDL 时间: 2022-1-23 21:16
选对装修公司很重要,我已入坑,私人定制更是大坑
作者: 嘉瑞装饰 时间: 2022-1-23 22:06
提示: 作者被禁止或删除 内容自动屏蔽
作者: 蒙娜丽莎瓷砖 时间: 2022-2-11 09:11
提示: 作者被禁止或删除 内容自动屏蔽
作者: 爱上可乐 时间: 2022-2-11 13:25
欢迎加入装修日记大家庭,您已成功参与【2022美伊典装饰杯装修日记大赛】
活动时间:2021年12月1日~2022年3月31日
福利:
2021年12月1日~2022年3月31日开装修日记帖,楼主发图文并茂帖满30楼可获50元购物卡。
更多奖项评选规则可查看活动主题帖
【2022美伊典装饰杯装修日记大赛】相约装修网友一同装修,一同记录~
http://www.loveshang.com/forum.php?mod=viewthread&tid=883166&extra=page%3D1
邀请你加入“家装日记微信群”,这是家装日记参加者讨论装修的大本营。可扫下方二维码添加团长微信,并内信我们你的电话,以便其他装修福利活动的优先通知。(郑重声明:我们将严格保密你的个人信息!)
注意事项:若站内信收到小广告,以及骚扰的站内信,请勿相信,有疑问及时联系我们。
2022年,小编希望遇到更多的他她,期待与你们的缘分。写日记帖一定要来找可乐哦,还没加我微信的赶紧加起来:18962255063
作者: 贝亚克地板 时间: 2022-2-19 10:55
提示: 作者被禁止或删除 内容自动屏蔽
作者: 美多集成灶 时间: 2022-3-7 13:12
提示: 作者被禁止或删除 内容自动屏蔽
作者: 美佳全屋定制 时间: 2022-3-7 15:58
提示: 作者被禁止或删除 内容自动屏蔽
作者: 略略略略略 时间: 2022-4-30 12:21
有没有人知道哪里能做这种转角没有框架的玻璃造型?

作者: 略略略略略 时间: 2022-7-3 21:55
下雨天雨停的时候可以刷防水吗?
作者: 略略略略略 时间: 2022-7-20 12:11
好想赶紧结束装修,今天趁午休去工地送水,结果还不如不去
作者: 鱼鱼爱喵喵 时间: 2022-7-20 20:13
啥意思?
我刚开始装修,几箱几箱买水,后来发现,没空瓶,一天二箱水没了,一二个工人喝太多了
后来就不买了
作者: 社会我王哥 时间: 2022-7-24 14:11
带回去慢慢喝
作者: 美豪斯客服 时间: 2022-7-24 14:44
提示: 作者被禁止或删除 内容自动屏蔽
作者: 略略略略略 时间: 2022-7-29 19:09
装修太焦虑了,和工人说了两句。
作者: 略略略略略 时间: 2022-7-29 19:41
今天吊顶,装修小白完全没概念,靠项目经理了。
作者: 略略略略略 时间: 2022-8-1 20:20
选门选了两天,今天下订。看了王力,款式不是很喜欢。看了步阳,款式真好看,但是有点小贵。看了星月神,也不错。最后还是选择了神将
,价格实惠,款式也喜欢。
还有就是定制门都要等一个月,所以大家可以尽早订。






| 欢迎光临 张家港爱上网 (http://www.loveshang.com/) |
Powered by Discuz! X3.1 |