


未末11 发表于 2020-09-06 20:32
恭喜,谢谢邻居分享,空调这一块想得很到位,学到了,以后也这么装

港城街溜子 发表于 2020-09-06 20:10
三期啊,不是说质量有问题
港城街溜子 发表于 2020-09-07 08:27
对的,一看楼主这准备工作,要花很多冤枉钱。首先这几家装修公司,半包价格应该在900左右,在港城属于中等偏上水平了?整屋定制,附近这么多工厂,直接指定板材定制就行。
小钰米12 发表于 2020-09-06 21:44
我也是阳光锦程的,@我一下,跟你看的差不多,还没订下来,互相交流一下
小钰米12 发表于 2020-09-06 21:44
我也是阳光锦程的,@我一下,跟你看的差不多,还没订下来,互相交流一下

卢克 发表于 2020-09-06 21:31
16幢的啊


团团7 发表于 2020-09-06 21:56
风管机的噪音超级大,我现在家里就是风管机,新房子选了三菱电机一拖五
clao 发表于 2020-09-07 09:50
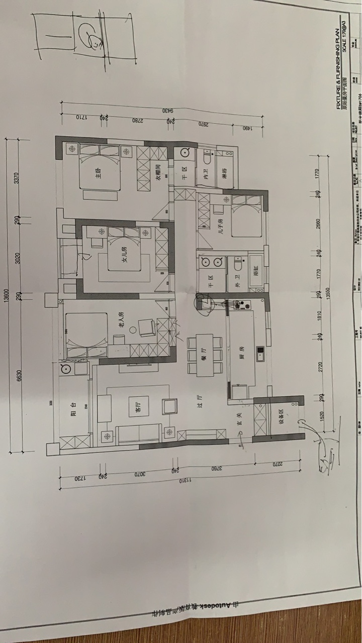
这个是设计师给的设计图纸。你可以拿去参考一下。不知道我们户型是否一样?
clao 发表于 2020-09-07 09:50
这个是设计师给的设计图纸。你可以拿去参考一下。不知道我们户型是否一样?
港城街溜子 发表于 2020-09-07 09:57
当我没说,土豪随意。




港城街溜子 发表于 2020-09-07 09:57
当我没说,土豪随意。
笃定↓ 发表于 2020-09-07 10:06
儿子怎么住北面小房间啊?
港城街溜子 发表于 2020-09-07 08:27
对的,一看楼主这准备工作,要花很多冤枉钱。首先这几家装修公司,半包价格应该在900左右,在港城属于中等偏上水平了?整屋定制,附近这么多工厂,直接指定板材定制就行。
卢克 发表于 2020-09-06 21:35
不是质量问题,是连廊没贴砖,已经整改了
clao 发表于 2020-09-07 10:23
儿子不要给他好的,女儿要好的,以后要嫁出去的啊!现在要多宝贝宝贝。

张嘴吃四方 发表于 2020-09-07 10:11
你这厨房改的房子不通透了,但进门不直对灶台。
主卧改的不错。
团团7 发表于 2020-09-06 21:56
风管机的噪音超级大,我现在家里就是风管机,新房子选了三菱电机一拖五
在路上 发表于 2020-9-7 10:36
还有一楼进户大厅过道墙壁怎么说的?
安然自得 发表于 2020-09-07 13:09
我选择了楼主说的三家装修公司的一家,装修过程中,会有减项,或者增项,,,减项及时扣钱,避免结尾款的时候扯皮,我们不当流氓也不要让别人当流氓
clao 发表于 2020-09-07 09:50
这个是设计师给的设计图纸。你可以拿去参考一下。不知道我们户型是否一样?

clao 发表于 2020-09-07 09:50
这个是设计师给的设计图纸。你可以拿去参考一下。不知道我们户型是否一样?
啦啦啦啦啦啦啦 发表于 2020-09-07 00:28
家里选了日立空调基本无声,橱柜直接工厂全屋定做,材料自己选没必要买品牌的,卫浴国产一线品牌全套定制一万不到全部搞定
啦啦啦啦啦啦啦 发表于 2020-09-07 00:28
家里选了日立空调基本无声,橱柜直接工厂全屋定做,材料自己选没必要买品牌的,卫浴国产一线品牌全套定制一万不到全部搞定
团子姐姐 发表于 2020-09-07 18:00
橱柜哪家工厂做的?卫浴什么品牌?求推荐
春暖花开00 发表于 2020-09-07 17:41
橱柜在那个工厂订的,求推荐
啦啦啦啦啦啦啦 发表于 2020-09-07 18:16
橱柜凡高家居 卫浴玫瑰岛 浪鲸
团子姐姐 发表于 2020-09-07 18:22
工厂在哪里的?
港城街溜子 发表于 2020-09-07 08:27
对的,一看楼主这准备工作,要花很多冤枉钱。首先这几家装修公司,半包价格应该在900左右,在港城属于中等偏上水平了?整屋定制,附近这么多工厂,直接指定板材定制就行。
卢克 发表于 2020-09-07 15:55
邻居啊,动工了吗? 过来参观下
花萝卜 发表于 2020-09-07 17:35
144平看着不大啊

啦啦啦啦啦啦啦 发表于 2020-09-07 00:28
家里选了日立空调基本无声,橱柜直接工厂全屋定做,材料自己选没必要买品牌的,卫浴国产一线品牌全套定制一万不到全部搞定
爱相随 发表于 2020-09-07 23:33
楼主这周我家也准备动工了,我也跟你一样去对比了这3家,最后选了视觉印像,设计总监专业性比较强,有自己独特的设计理念,然后他们的主材我也比较中意
clao 发表于 2020-09-07 10:25
设计公司我还在谈,大概700-750一平方左右。并没有900。
clao 发表于 2020-09-07 09:50
这个是设计师给的设计图纸。你可以拿去参考一下。不知道我们户型是否一样?

港城街溜子 发表于 2020-09-07 08:27
对的,一看楼主这准备工作,要花很多冤枉钱。首先这几家装修公司,半包价格应该在900左右,在港城属于中等偏上水平了?整屋定制,附近这么多工厂,直接指定板材定制就行。

在路上 发表于 2020-09-07 10:36
还有一楼进户大厅过道墙壁怎么说的?
范家小魔王 发表于 2020-09-08 11:34
主卧进门那里改的不错,这个方案我能直接用嘛


爱相随 发表于 2020-09-07 23:33
楼主这周我家也准备动工了,我也跟你一样去对比了这3家,最后选了视觉印像,设计总监专业性比较强,有自己独特的设计理念,然后他们的主材我也比较中意
范家小魔王 发表于 2020-09-08 11:38
一分价钱一分货。周边厂家不排除有做的不错的,但是大品牌肯定是有它的优势的,先不从板子说起,可能你会说拿同样的板子过来,那做工呢,细节方面是很多小厂做不来的!不过对于你这样的街溜子来说,也不在乎什么设计感,只要能住,柜子能放东西就行了吧
clao 发表于 2020-09-08 12:00
你家视觉给我说过,你家9w6多装潢费?
啦啦啦啦啦啦啦 发表于 2020-09-07 18:25
高德地图可以查到

蜡笔心心 发表于 2020-09-08 21:32
我家刚刚开工,经验可以相互交流的。

jszjgsxz 发表于 2020-09-09 09:23
这个户型敲墙砌墙是比较多,我都算了600一平方了
喵呜个咧 发表于 2020-09-09 08:44
儿子的地位……一目了然
clao 发表于 2020-9-9 11:41
600一平不是很划算了吗
赵柯 发表于 2020-09-09 12:48
需要兔宝宝全屋定制可以联系我 红星美凯龙2号馆
clao 发表于 2020-09-09 21:47
定不起,你们套路太深,给我说的价格很便宜,等到真正做的时候五金啊抽屉啊什么乱七八糟一加,超级贵。

月亮偷着哭 发表于 2020-09-10 13:56
你这么一说会吓着人家的


clao 发表于 2020-09-07 09:56
风管机可以也选择大金日立三菱的啊
啦啦啦啦啦啦啦 发表于 2020-09-07 00:28
家里选了日立空调基本无声,橱柜直接工厂全屋定做,材料自己选没必要买品牌的,卫浴国产一线品牌全套定制一万不到全部搞定

风管机还是中央空调?团团7 发表于 2020-09-06 21:56
风管机的噪音超级大,我现在家里就是风管机,新房子选了三菱电机一拖五
港城街溜子 发表于 2020-09-07 08:27
对的,一看楼主这准备工作,要花很多冤枉钱。首先这几家装修公司,半包价格应该在900左右,在港城属于中等偏上水平了?整屋定制,附近这么多工厂,直接指定板材定制就行。

clao 发表于 2020-09-07 09:46
只是准备,还没有具体的定制,因为我预算充足,所以不考虑一些杂牌的家具。
宝贝爸爸 发表于 2020-09-12 15:32
风管机有这么夸张嘛?更节省的方案可以客厅放风管机,房间放挂壁机
团团7 发表于 2020-09-12 15:52
外机声音很大

宝贝爸爸 发表于 2020-09-12 15:31
风管机还是中央空调?
赵柯 发表于 2020-09-13 09:40
我们给的价格应该不便宜吧,毕竟是多层板,除非到小厂比价格,不然应该不算贵
clao 发表于 2020-09-13 09:45
那你就在我这个贴里回复一下,让大家都看看你的具体价格,我家50平方柜子,加上好一点五金件和抽屉要求很多,你能给我算多少钱一平方?就以多层板算。以前买衣柜就是买一套,现在什么五金啊抽屉啊人工啊都是另外算的。真是牛逼了,本地多层板加工厂我也去问过了。价格是全部算在内800多一个平方,随便多少个抽屉,五金件用国产比较好的品牌的。这就是本地没品牌的厂货。你们行吗?
啦啦啦啦啦啦啦 发表于 2020-09-13 14:24
800多也是贵的全包莫干山板材600一个平方按照这个标准来不会亏



clao 发表于 2020-09-13 16:34
莫干山九洲那边的店长联系我了,不知道她哪来的我的号码,聊了一会儿:所有全部在内给我报价1500-1700一个平方
clao 发表于 2020-09-07 10:23
儿子不要给他好的,女儿要好的,以后要嫁出去的啊!现在要多宝贝宝贝。
| 欢迎光临 张家港爱上网 (http://www.loveshang.com/) | Powered by Discuz! X3.1 |