
,然后就再看一下他们家的方案和报价吧,也看了三四个来回,给了我一个算是比较低的价格(因为我把半包材料都更换了,下面会说到),相比别家价格都会低一点。。然后就想着说去看看工地,看下来还可以,回去谈合同的时候提了一些我的要求,他们也都可以接受,那就定吧,就把合同签了开始做效果图!
找的这家店老板也比较实在,爽快,直接报价就比人家便宜很多,我就直接定下来了,选的是mini 2Q涡旋压缩机系列一拖四,大五匹。然后顺带着地暖也一块在老板这定了,选的博世新欧洲之星24kw的锅炉加上瑞好的三层阻氧管
太难了
普通断桥铝这么做价格赶上系统窗了,就维盾他们家算下来价格还算比较合适,就定下来了,等安装后看效果吧。
,选了汉斯的两款中端点的款式的,然后老板给打了个折,和马桶一样,虽然网上更便宜,但是谁让咱更在意安装和售后呢

科比24mvp 发表于 2020-06-29 20:56
维盾的什么厚度的断桥铝,价格多少一平


















科比24mvp 发表于 2020-06-29 20:56
维盾的什么厚度的断桥铝,价格多少一平




交叉的平行线 发表于 2020-07-08 09:24
走位很特色啊
嗨!好久不见 发表于 2020-07-08 22:56
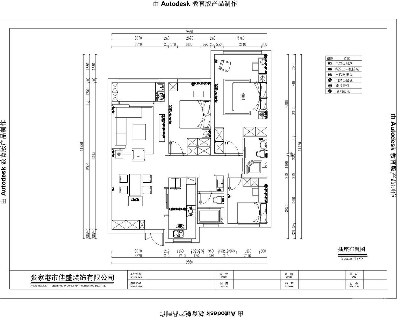
我家109平,户型一样!但你这套呢面积多少啊
嗨!好久不见 发表于 2020-07-09 12:26
你合同上套内写了多少
乔治费歇尔水管 发表于 2020-07-09 13:02
管子是红色,有几处配件是绿色的是不是一个厂家的呢



ZHUCEBULIAO 发表于 2020-07-10 18:07
楼主空调什么价格呀
七友1994 发表于 2020-07-10 18:20
我订的时候便宜,两万多,那时候有厂家的疫情补贴三千,现在没有补贴了
ZHUCEBULIAO 发表于 2020-07-10 18:31
嗯两万多是真便宜




| 欢迎光临 张家港爱上网 (http://www.loveshang.com/) | Powered by Discuz! X3.1 |